首页 > Products > Air spring vibration isolator > SLM series air spring vibration isolator
SLM air spring
-
SLM air spring Overview -
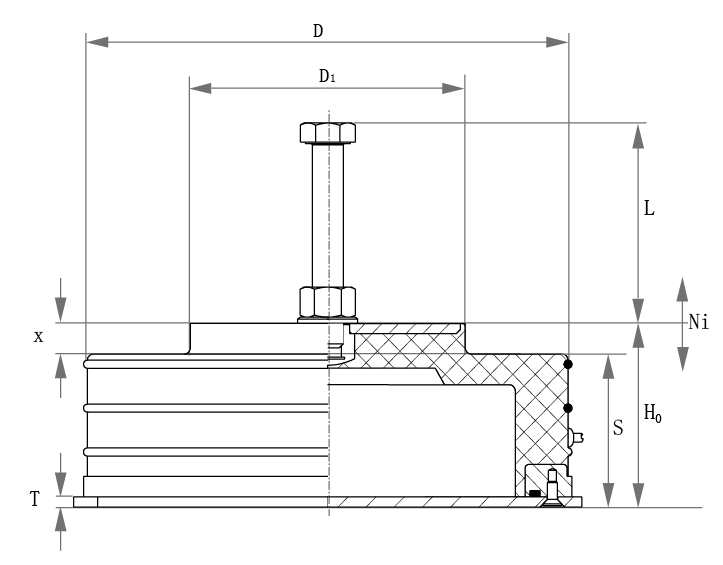
Elastomer-metal combination with screwable base plate, gas chamber made of elastomeric material, reinforced with steel rings, 10 sizes.Applicable Fields:Measuring machines, flat workbenches,equipment foundations, presses, automatic shearing machines, occlusion machines,compressors, fans, air conditioners, etc. -
SLM air spring Advantage +
-
SLM air spring Performance +
-
SLM air spring Specifications +

Chinese
English









Top